U gebruikt een verouderde internetbrowser.
We raden u aan om de meest recente internetbrowser te installeren voor de beste weergave van deze website.
Een internetbrowser die up to date is, staat ook garant voor veilig surfen.

Vossenbergstraat 92, 3500 Hasselt
Vraagprijs: € 800.000

Omschrijving

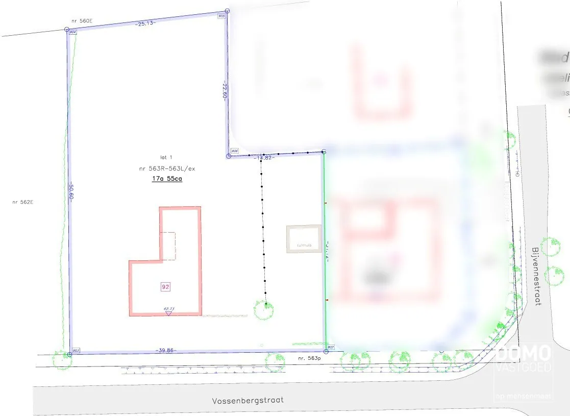
UNIEKE KANS: RUIME BOUWGROND VAN 17A55CA TE KOOP VOOR DE BOUW VAN JOUW LUXEWONING TE HASSELT

Deze eigendom in Hasselt biedt een uitzonderlijke opportuniteit voor wie op zoek is naar een ruime bouwgrond voor het realiseren van een luxewoning. Het perceel heeft een totale oppervlakte van 17a55ca, met een mogelijke gevelbreedte van 40m en vormt de ideale basis voor een exclusief woonproject op maat.

De huidige woning, gebouwd in 1965, beschikt over een bewoonbare oppervlakte van 154 m² en omvat 3 slaapkamers, 1 badkamer en een garage. Met een EPC-score van 584 (label F) is het pand renovatieplichtig, waardoor afbraak en nieuwbouw zich hier als de meest aangewezen piste aanbieden.

De rustige en residentiële ligging, gecombineerd met de uitzonderlijke perceeloppervlakte, maakt deze bouwgrond bijzonder geschikt voor het realiseren van een hoogstaande en comfortabele gezinswoning met aandacht voor ruimte, privacy en architectuur.

De noordwest georiënteerde tuin en de gunstige perceelstructuur bieden tal van mogelijkheden op vlak van indeling, lichtinval en buitenbeleving, zodat u uw woonproject volledig naar eigen wensen kan vormgeven.

Kortom, dit is een unieke kans voor wie wil bouwen op een toplocatie: een royaal perceel met alle troeven voor het ontwikkelen van een exclusieve woning.

Bron bewoonbare oppervlakte: EPC verslag

Interesse? Contacteer ons vandaag nog via 011 96 49 96 of via neve@domovastgoed.be

Kenmerken

Algemeen

Adres:Vossenbergstraat 92
Hasselt
Referentie:TK/26/0950
Vraagprijs:€ 800.000
Type:Woning
Perceeloppervlakte:1.451 m²
Perceelbreedte:40 m
Perceeldiepte:27 m
Bewoonbare opp.:154 m²
Type constructie:Traditioneel
Bouwjaar:1965
Algemene staat:Te renoveren

Indeling

Slaapkamers:3
Badkamers:1
WC:1
Woonkamer:Ja, Woonkamer
Keuken:Ja, Gesloten keuken, Ingericht met toestellen
Kelder:Ja
Tuin:Ja
Tuin oriëntatie:Noord-West
Tuin kwaliteit:Normaal
Garage:1
Parking:Ja
Parking Types:Privé

Comfort

Snelweg:Ja
Treinstation:Ja
Bushalte:Ja
Winkel:Ja
School:Ja
Kinderopvang:Ja
Bank:Ja
Ontspanning:Ja
Restaurant:Ja
Raamwerk:Hout
Gevel:Baksteen
Beglazing:Enkel
Internet:Ja
Kabel:Ja

Kadastrale gegevens

Niet geïndexeerd K.I.:€ 867
Kadastrale Oppervlakte:1.451 m²

Informatieplicht

EPC Certificaat Nr.:20260409-0003844134-RES-1
EPC Index:584,00 kWh/(m² jaar)
Energielabel:F
Renovatieplicht:Ja
EPC Geldig tot:9/04/2036
Stedenbouwkundige vergunning:Ja
Voorkooprecht:Neen
Verkavelingsvergunning van toepassing:Ja
Maatregelenregister:Neen
Stedenbouwkundige bestemming:Woongebied
Dagvaarding en herstelvordering:Geen rechterlijke herstelmaatregel of bestuurlijke maatregel opgelegd
Overstromingsgevoelig:Geen overstromingsgevoelig gebied
Overstromingsgebied:Geen afgebakende zones
Overstromingskans perceel (P-score):A
Overstromingskans gebouw (G-score):A
Erfgoed:Geen beschermd erfgoed
Deze eigendom kan onderhevig zijn aan de renovatieverplichting die door de Vlaamse overheid wordt opgelegd voor residentiële gebouwen. Consulteer voor meer informatie de website van het Vlaams Energie- en Klimaatagentschap via https://www.vlaanderen.be/een-woning-kopen/renovatieverplichting-voor-residentiele-gebouwen

Ligging

Streetview

Neem vrijblijvend contact op

Wenst u meer informatie of wilt u een bezoekmoment inplannen? Contacteer ons vrijblijvend voor meer informatie. 
Wanneer wij uw aanvraag hebben ontvangen zullen wij verder contact met u opnemen. 


U moet akkoord gaan met het privacybeleid van deze website
* Verplicht in te vullen
Niet gevonden wat je zocht? Schrijf je dan vrijblijvend in en blijf op de hoogte van ons recentste aanbod.
Schrijf je in
Terug naar boven
Sluit menu DOMO VASTGOED NV